Immobilien
ZurückVerkauft! Reihenendhausbungalow in Rotenburg
| Wohnfläche: | 135 m² + 61 m² NF |
| Grundstücksfläche: | 434+62 m² |
| Zimmer: | 5 |
| Garage: | 1 |
| Baujahr: | 1967 |
| Kaufpreis: | 225.000,00 |
| Provision: | 5,95 % |
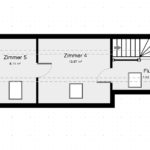
- KG
- EG
- DG
Beschreibung
Liebe Eigenheimsuchende,
zum Verkauf steht ein teilunterkellerter Reihenendbungalow mit ausgebautem Dachgeschoss. Das Objekt wurde im Jahre 1967 in massiver Bauweise auf einem 434 m² großen Süd-Grundstück errichtet und bietet insgesamt ca. 135 m² Wohnfläche sowie ca. 61 m² Nutzfläche.
Im Erdgeschoss erreichen Sie über den Flur die Küche, das Gäste WC, das Bad, ein Schlafzimmer sowie das Wohnzimmer mit dem direkten Zugang auf die Terrasse. Aus einem der Schlafzimmer wurde 2009 ein Vorraum für den Wintergarten, der ebenfalls so wie das Wohnzimmer von der Wärme des Kachelofens profitiert. Der Kachelofen im Wohnzimmer ist in die Wand eingefasst und leitet durch den Schamottestein die Wärme an den anliegenden Wintergartenvorraum weiter.
Das ausgebaute und beheizte Dachgeschoss bietet einen großen Raum sowie ein kleines Zimmer, welches gut als kleines Büro oder als begehbarer Kleiderschrank genutzt werden könnte. Das Haus wurde laufend saniert und gepflegt (siehe Bauhistorie). Zu den größeren Baumaßnahmen zählt der Anbau des Wintergartens. Der Wintergarten wurde mit einer Bodenheizung sowie mit einer automatischen Beschattungsanlage ausgestattet.
Besonders hervorzuheben ist hier die ruhige Lage. Das Objekt befindet sich zentrumsnah in einer verkehrsberuhigten Zone. Das großzügige Grundstück bietet viel Raum für ungestörte Erholung und Hobby’s. Durch die Lage in der verkehrsberuhigten Zone können Kinder gefahrlos direkt vor der Tür spielen.
Lassen Sie sich das Haus von uns zeigen und schicken uns einfach eine Anfrage mit Ihren Kontaktdaten.
Rufen Sie uns an! Wir beraten Sie gerne.
Bauhistorie
- 1996 Fenster neu
- 2003 Kacheloffen
- 2003 Bodenbelag im Wohnzimmer (Schiffsparkett)
- 2003 Bodenbelag im Schlafzimmer unten (Parkett)
- 2008 Heizung sowie alle Heizkörper getauscht
- 2009 Wintergarten mit Bodenheizung
- 2009 Terrasse
- 2015 neue Küche
- 2018 Fliesen in der Küche
- 2018 Badezimmer
- 2018 neue Fliesen im Wintergarten
Objektdaten auf einem Blick
Zimmer: 5
Teilkeller: 2 Räume
Wohnfläche: 135 m² + ca. 61 m² Nutzfläche
Grundstück ca.: 434 m²
Baujahr: 1967
Heizungsart: Gas (Baujahr 2008)
Kaufpreis: 225.000,- €
Provision: 5,95 % vom notariell beglaubigten Kaufpreis
Exemplarisch möchten wir auf die folgenden Ausstattungsdetails verweisen:
- Wintergarten 2009
- Beschattungsanlage
- Kachelofen
- Teilkeller
- Einbauküche
- Schiffsparkett im WZ
- Garage
- große Terrasse
Energieausweis
- Gemäß der EnEV 2014, § 16a wird ein Energieausweis vorliegen und kann auf Wunsch bei der Besichtigung eingesehen werden.
Energieausweis
Bedarfsausweis —– kWh/(m²a)
Energieklasse: —
Energieträger: Gas /Stückholz
Lage
Das Wohnhaus befindet sich in Rotenburg (Wümme). In ruhiger Lage Rotenburgs verfügt der Standort in unmittelbarer Nähe über sämtliche Einrichtungen des täglichen Lebens. Einkaufsmöglichkeiten, kulturelle und gastronomische Einrichtungen befinden sich wenigen Autominuten entfernt. In wenigen Autominuten erreichen Sie auch den Hauptbahnhof und damit alle Anschlüsse an den öffentlichen Nahverkehr.
Die verkehrsgünstige Lage von Rotenburg zwischen den Städten Hamburg, Bremen und Hannover ist besonders hervorzuheben. Diese sind sowohl mit dem Auto als auch mit dem Zug gut zu erreichen. Durch die Lage ist eine optimale Anbindung an den Nah- und Fernverkehr gewährleistet. Alle Schulformen, Kindergärten, Ärzte, das Erlebnisbad Ronolulu sowie Rad- und Wanderwege sind in unmittelbarer Nähe.
Kontaktaufnahme
Bitte vereinbaren Sie einen Besichtigungstermin. Haben Sie bitte Verständnis dafür, dass unangemeldete Besucher nicht empfangen werden können. Weiterhin bitten wir um Verständnis, wenn wir Kundenanfragen, aufgrund unserer Nachweispflicht gegenüber dem Verkäufer, nur bei vollständiger Angabe Ihrer Kontaktdaten – Name, Anschrift, Telefonnummer, E-Mail – bearbeiten.
Hinweis
Alle Daten und in diesem Exposé getroffenen Darstellungen beziehen sich auf die uns vorliegenden Pläne, uns übergebene Unterlagen und Skizzen sowie Aussagen des Eigentümers. Für die Richtigkeit dieser Angaben, Irrtümer oder Änderungen können wir keine Haftung übernehmen.
Der Maklervertrag mit uns kommt durch die Inanspruchnahme unserer Maklertätigkeiten auf der Basis des Objekt-Exposés und der damit verbundenen Allgemeinen Geschäftsbedingungen zustande. Die vom Käufer zu zahlende Courtage in Höhe von 5,95 % auf den Kaufpreis ist bei notariellem Vertragsabschluss verdient und fällig. Die Grunderwerbsteuer, Notar- und Grundbuchkosten sind vom Käufer zu tragen.
Gerne sprechen wir mit Ihnen über die weiteren Einzelheiten, bei Bedarf auch über eine Finanzierung dieser Immobilie.
Zurück







































